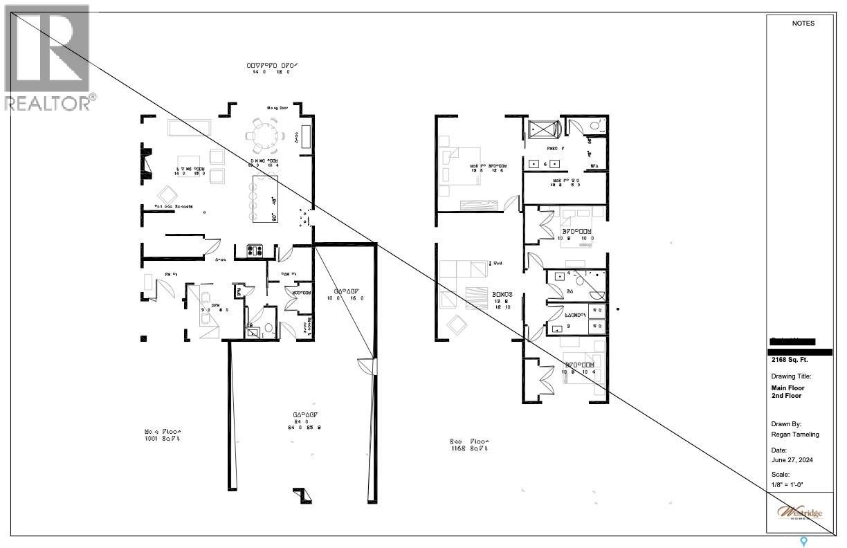
Brand new custom-build by Westridge Homes, this carefully designed property sits on a generous southwest-facing lot in Brighton, backing onto green space for sunset views and extra privacy. The walking path beyond the backyard leads to a gathering hub with ping pong tables and space to connect. The main floor offers a cozy front den/office with pocket doors, stylish wallpaper and built-in filing cabinets. A spacious mudroom with custom cabinetry allows for smart storage, keeping the main floor clutter-free. There is a bright walk-through pantry with a coffee bar that opens into a bright, open kitchen featuring a continuous granite backsplash. oversized island and sleek range hood. The dining area extends out to a covered deck with a privacy wall and gas bbq hook up while the living room is anchored by a stone-wrapped gas fireplace for cozy evenings. Upstairs, youāll find a large bonus room and three spacious bedrooms, including a spacious five piece master en-suite. The fully developed basement adds a family room, fourth bedroom, three-piece bathroom, and a dedicated gym (could be a 5th bedroom) with a built-in space ready for a future sauna. The oversized (760 sq ft!) garage has epoxy flooring, roughed in plumbing and sewer, a dehumidifier, drain and includes a tandem third bay. There is also an extended concrete pad that runs along the west side of the home for a shed and extra storage. Outside, the yard is set up for outdoor living with electrical for a hot tub hook-up and a gas line for your BBQ, all within a connected, amenity-rich Brighton community known for its parks and family-style living. (id:62370)
| MLS® Number | SK030334 |
| Property Type | Single Family |
| Neigbourhood | Brighton |
| Features | Sump Pump |
| Structure | Deck |
| Bathroom Total | 4 |
| Bedrooms Total | 5 |
| Appliances | Washer, Refrigerator, Dishwasher, Dryer, Microwave, Garage Door Opener Remote(s), Hood Fan, Central Vacuum - Roughed In, Stove |
| Architectural Style | 2 Level |
| Basement Development | Finished |
| Basement Type | Full (finished) |
| Constructed Date | 2025 |
| Construction Style Attachment | Detached |
| Cooling Type | Central Air Conditioning, Air Exchanger |
| Fireplace Fuel | Gas |
| Fireplace Present | Yes |
| Fireplace Type | Conventional |
| Heating Fuel | Natural Gas |
| Heating Type | Forced Air |
| Stories Total | 2 |
| Size Interior | 2,168 Ft2 |
| Type | House |
| Attached Garage | |
| Heated Garage | |
| Parking Space(s) | 6 |
| Acreage | No |
| Size Frontage | 58 Ft |
| Size Irregular | 58x130 |
| Size Total Text | 58x130 |
| Level | Type | Length | Width | Dimensions |
|---|---|---|---|---|
| Second Level | Bonus Room | 8 ft | 13 ft | 8 ft x 13 ft |
| Second Level | 4pc Bathroom | x x x | ||
| Second Level | Bedroom | 10'4 x 10'8 | ||
| Second Level | Bedroom | 10 ft | 10 ft x Measurements not available | |
| Second Level | Primary Bedroom | 12'6 x 13'6 | ||
| Second Level | 5pc Bathroom | x x x | ||
| Basement | Bedroom | 9 ft | 9 ft x Measurements not available | |
| Basement | 3pc Bathroom | x x x | ||
| Basement | Family Room | 13'14 x 18'8 | ||
| Basement | Bedroom | 10 ft | 10 ft x Measurements not available | |
| Main Level | Den | 8 ft | 9 ft | 8 ft x 9 ft |
| Main Level | 2pc Bathroom | x x x | ||
| Main Level | Kitchen | 20 ft | 13 ft | 20 ft x 13 ft |
| Main Level | Dining Room | 13 ft | Measurements not available x 13 ft | |
| Main Level | Living Room | 15 ft | 14 ft | 15 ft x 14 ft |
| Main Level | Mud Room | x x x |
Compare listings
Compare