4 Bedroom
3 Bathroom
2,045 ft2
2 Level
Fireplace
Forced Air
$686,570
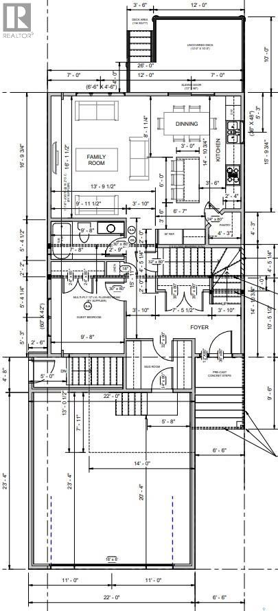
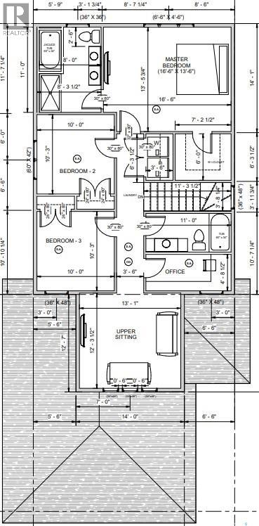
This home in Brighton, currently under construction, offers 2,045 sq. ft. of modern living in one of Saskatoonās fastest-growing neighbourhoods. Surrounded by shopping, gyms, theatres, clinics, parks, and more, it combines convenience with comfort. Built by SK Homes, this property offers quality construction with thoughtful finishes throughout. The main floor features a guest bedroom and a 4-piece bathroom, along with an open-concept kitchen, dining, and family area. A feature wall with an electric fireplace anchors the living space, while large windows bring in plenty of natural light. The kitchen is finished with soft-close cabinetry and quartz countertops that flow throughout the entire home. From the dining area, step outside to the 12' x 10' deck, perfect for outdoor living. Upstairs, a bright second living space complements two bedrooms, an office, a shared 4-piece bathroom, and a convenient side-by-side laundry area. The master suite is spacious, complete with a walk-in closet and a 5-piece ensuite bathroom. The house also comes with an oversized two-car garage, which adds extra storage and functionality. A double concrete driveway, sidewalks to the suite entrance, and front landscaping are also included. This home includes a $6,000 appliance credit, allowing buyers to select appliances that fit their style. The basement will be insulated with pony walls, with a FUTURE DEVELOPMENT OPTION that includes a recreation room for the main side and a two-bedroom legal suite. By purchasing early, buyers have the opportunity to personalize the home with customizations such as paint, floor or carpet colours, cabinetry styles, countertop designs, and exterior finishesāmaking this home truly their own. (id:62370)
Property Details
|
MLS® Number
|
SK018922 |
|
Property Type
|
Single Family |
|
Neigbourhood
|
Brighton |
|
Features
|
Rectangular, Double Width Or More Driveway, Sump Pump |
|
Structure
|
Deck |
Building
|
Bathroom Total
|
3 |
|
Bedrooms Total
|
4 |
|
Appliances
|
Refrigerator, Dishwasher, Garage Door Opener Remote(s), Hood Fan, Stove |
|
Architectural Style
|
2 Level |
|
Basement Development
|
Unfinished |
|
Basement Type
|
Full (unfinished) |
|
Constructed Date
|
2026 |
|
Construction Style Attachment
|
Detached |
|
Fireplace Fuel
|
Electric |
|
Fireplace Present
|
Yes |
|
Fireplace Type
|
Conventional |
|
Heating Fuel
|
Natural Gas |
|
Heating Type
|
Forced Air |
|
Stories Total
|
2 |
|
Size Interior
|
2,045 Ft2 |
|
Type
|
House |
Parking
|
Attached Garage
|
|
|
Parking Space(s)
|
4 |
Land
|
Acreage
|
No |
|
Size Frontage
|
38 Ft |
|
Size Irregular
|
4737.46 |
|
Size Total
|
4737.46 Sqft |
|
Size Total Text
|
4737.46 Sqft |
Rooms
| Level |
Type |
Length |
Width |
Dimensions |
|
Second Level |
4pc Bathroom |
|
|
5ft x 11ft |
|
Second Level |
Office |
|
|
4ft x 11ft |
|
Second Level |
Living Room |
|
|
13ft x 12ft |
|
Second Level |
Bedroom |
|
|
10ft x 10ft |
|
Second Level |
Bedroom |
|
|
10ft x 10ft |
|
Second Level |
Bedroom |
|
|
13ft x 16ft |
|
Second Level |
5pc Ensuite Bath |
|
|
11ft x 8ft |
|
Main Level |
Foyer |
|
|
13ft x 7ft |
|
Main Level |
Bedroom |
|
|
10ft x 9ft |
|
Main Level |
4pc Bathroom |
|
|
5ft x 10ft |
|
Main Level |
Family Room |
|
|
16ft x 13ft |
|
Main Level |
Kitchen/dining Room |
|
|
10ft x 17ft |
|
Main Level |
Mud Room |
|
|
5ft x 10ft |