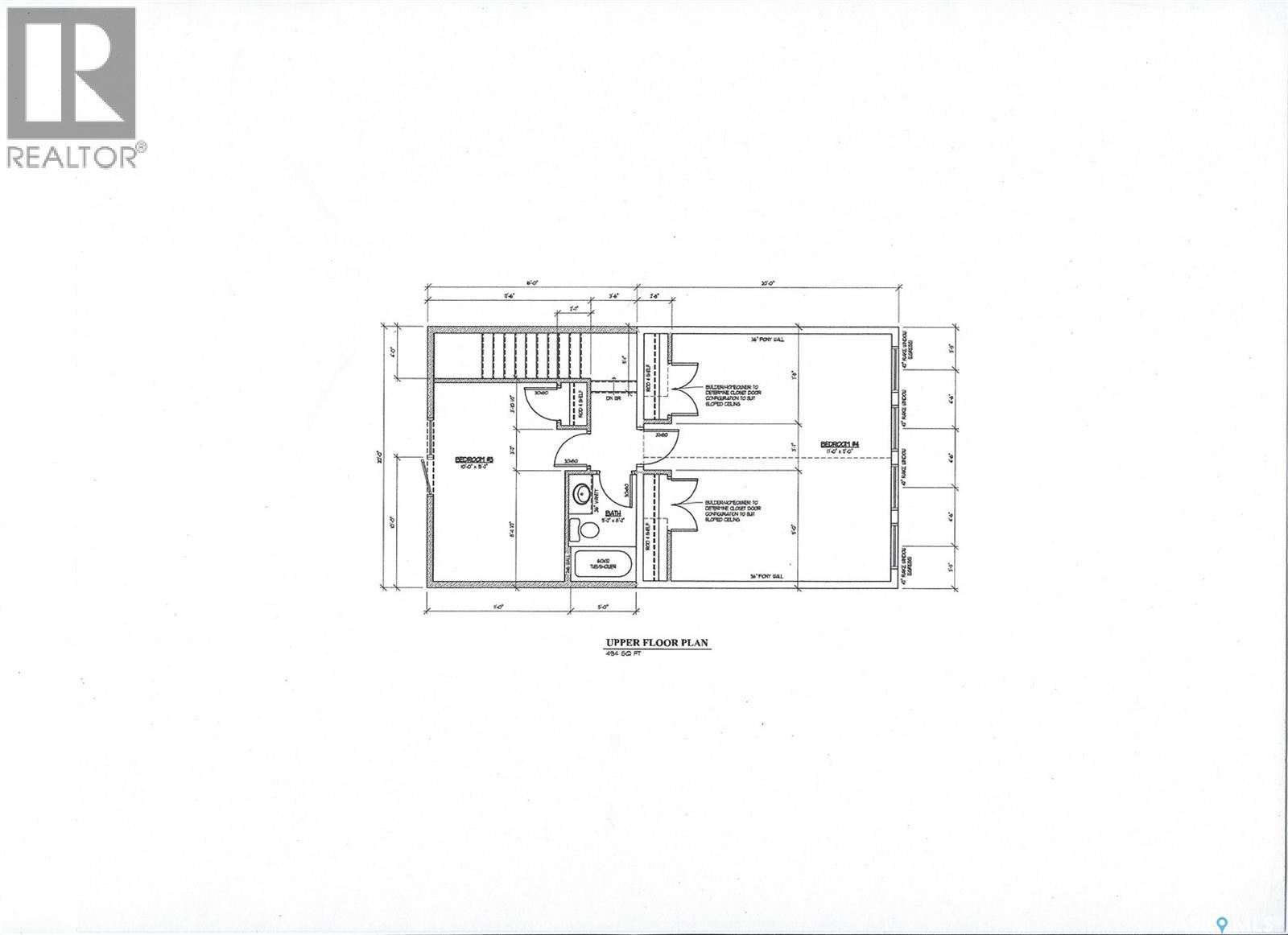
Wow! Ready to swing a hammer? This unique opportunity awaits. Most of the exterior and interior framing is done, Gas line in house , as well as Electrical rough-in and Water line. This unique opportunity in a rapidly developing part of Pleasant Hill offers up 6 total Bedrooms if developed with proposed plans. Loft design with bedrooms upstairs and living room/kitchen on main. Basement offers separate suite with 2 bedrooms in full height basement. Start construction before the snow hits and build your Dream!! (id:62370)
| MLS® Number | SK028214 |
| Property Type | Single Family |
| Neigbourhood | Pleasant Hill |
| Bathroom Total | 2 |
| Bedrooms Total | 3 |
| Basement Type | Full |
| Constructed Date | 2023 |
| Construction Style Attachment | Detached |
| Heating Fuel | Natural Gas |
| Stories Total | 2 |
| Size Interior | 920 Ft2 |
| Type | House |
| Parking Space(s) | 1 |
| Acreage | No |
| Size Frontage | 25 Ft |
| Size Irregular | 3245.00 |
| Size Total | 3245 Sqft |
| Size Total Text | 3245 Sqft |
| Level | Type | Length | Width | Dimensions |
|---|---|---|---|---|
| Second Level | Bedroom | 15'2'' x 10' | ||
| Second Level | Bedroom | 17' x 12' | ||
| Second Level | 4pc Bathroom | 8'2'' x 5'2'' | ||
| Basement | Bedroom | 11.0' x 9.0' | ||
| Main Level | Living Room | 15'6'' x 8'8'' | ||
| Main Level | Kitchen | 8'11' x 7'9'' | ||
| Main Level | 5pc Bathroom | 7'7'' x 6'8'' |
Compare listings
Compare