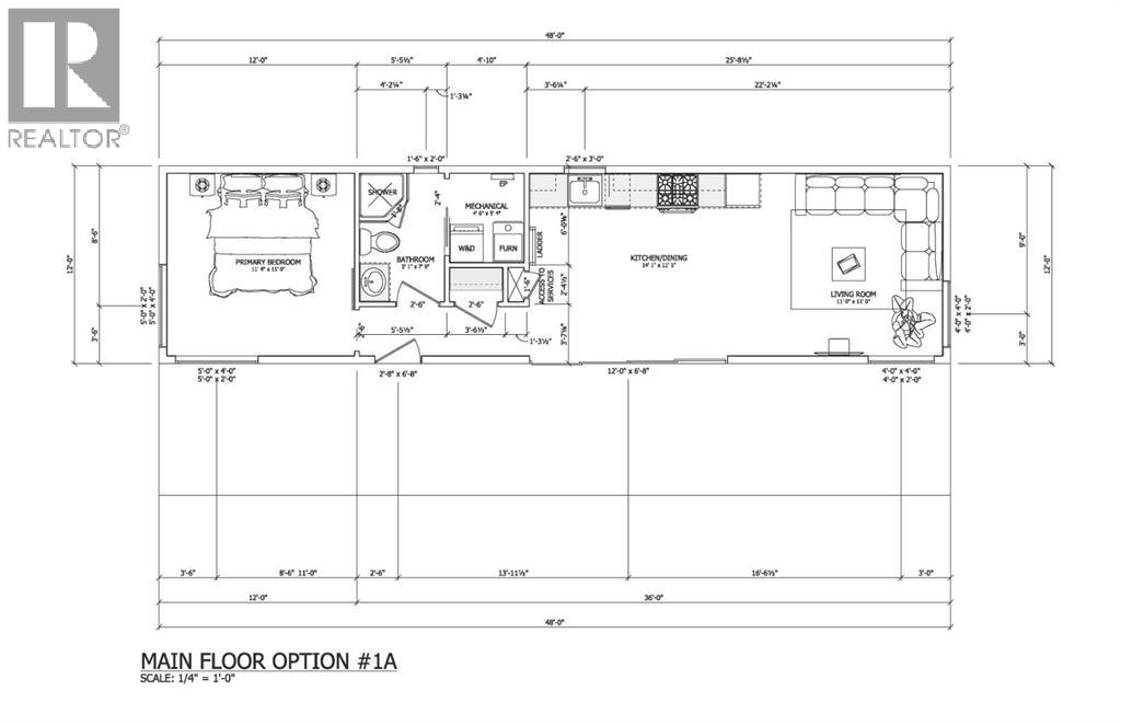
723 Kenderdine Boulevard ā Sunset View BeachThis property is not yet built. The seller is offering this modern modular home as a proposed build option for the lot at Sunset View Beach, just steps from the waterfront. The proposed design features a 12ā x 48ā modular home built on a screw pile foundation, offering an efficient and thoughtfully planned layout that works well as a recreational retreat or seasonal getaway. The design includes 2 bedrooms, luxury vinyl plank flooring, and a warm contemporary finish with shiplap pine ceilings and walls. The proposed kitchen and bathroom feature quartz countertops, and the bathroom includes a tile-surround shower and a glass door. Custom bedroom millwork provides smart storage solutions, and a loft space offers additional sleeping or storage options. In-home laundry is also included for added convenience. Heating and cooling are planned with an air-source heat pump and backup electric furnace, providing efficient year-round comfort, along with triple-glazed windows to enhance energy efficiency. A major advantage of this lot is that septic, power, and water are already installed, helping reduce development time and cost. This is an excellent opportunity to secure a serviced lot with a proposed modern build in the desirable Sunset View Beach community, offering lakeside living in a peaceful recreational setting. (id:62370)
| MLS® Number | A2280755 |
| Property Type | Single Family |
| Amenities Near By | Water Nearby |
| Community Features | Lake Privileges |
| Features | Treed, See Remarks |
| Parking Space Total | 4 |
| Plan | 86b05598 |
| Structure | None |
| Bathroom Total | 1 |
| Bedrooms Above Ground | 2 |
| Bedrooms Total | 2 |
| Appliances | None |
| Basement Type | None |
| Constructed Date | 2026 |
| Construction Material | Wood Frame |
| Construction Style Attachment | Detached |
| Cooling Type | None |
| Exterior Finish | Metal |
| Flooring Type | Vinyl |
| Foundation Type | None |
| Heating Fuel | Electric |
| Heating Type | Baseboard Heaters |
| Stories Total | 1 |
| Size Interior | 659 Ft2 |
| Total Finished Area | 659 Sqft |
| Type | House |
| None |
| Acreage | No |
| Fence Type | Not Fenced |
| Land Amenities | Water Nearby |
| Size Depth | 53.95 M |
| Size Frontage | 19.81 M |
| Size Irregular | 0.27 |
| Size Total | 0.27 Ac|10,890 - 21,799 Sqft (1/4 - 1/2 Ac) |
| Size Total Text | 0.27 Ac|10,890 - 21,799 Sqft (1/4 - 1/2 Ac) |
| Zoning Description | Rec |
| Level | Type | Length | Width | Dimensions |
|---|---|---|---|---|
| Second Level | Loft | 7.00 Ft x 11.00 Ft | ||
| Main Level | Other | 14.00 Ft x 11.00 Ft | ||
| Main Level | Living Room | 11.00 Ft x 11.00 Ft | ||
| Main Level | Primary Bedroom | 10.00 Ft x 11.00 Ft | ||
| Main Level | 3pc Bathroom | .00 Ft x .00 Ft | ||
| Main Level | Laundry Room | .00 Ft x .00 Ft | ||
| Main Level | Bedroom | 9.00 Ft x 11.00 Ft |
Compare listings
Compare